Уведомления
Авторизуйтесь или зарегистрируйтесь, чтобы оценивать материалы, создавать записи и писать комментарии.
Авторизуясь, вы соглашаетесь с правилами пользования сайтом и даете согласие на обработку персональных данных.
Белорусские инженеры нашли способ ускорить возведение промежуточных опор эстакад
Для транспортной эстакады комплекса uST используются особые конструкции подкрановых композитных элементов. Инженеры используют решения, адаптированные под высокую скорость строительства, демонстрирующие долговечность и универсальность. Чтобы оптимизировать процесс установки рельсо-струнных магистралей, белорусские инженеры разработали специализированный фундамент для промежуточных опор эстакад uST – это чрезвычайно актуально при масштабном возведении сетевой транспортной инфраструктуры.
В большинстве случаев промежуточные опоры эстакад представляют собой П-образные рамы, опирающиеся на массивные плитные фундаменты или комбинированные основания. Однако в рамках проектов uST акцент, как правило, делается на скорости строительства, минимизации земляных работ и снижении зависимости от погодных условий.

Вместо традиционного плитного фундамента инженеры используют сборные железобетонные забивные сваи со стальным оголовком. Такая конструкция позволяет значительно ускорить возведение опорных фундаментов, предполагая отсутствие опалубки, минимальную подготовку котлована, исключение длительного ожидания набора прочности бетона. Результаты исследования опубликованы в официальном университетском сборнике Международной научно-практической конференции «Инновационное развитие транспортного и строительного комплексов».
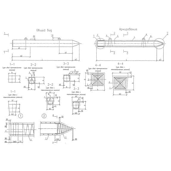
Конструкция и особенности
Предлагаемый фундамент базируется на сваях по серии Б1.011.1-2.08, с металлическим оголовком. Металлический оголовок в форме трубы решает сразу несколько задач: корректирует возможную неровность забивки сваи, предотвращает отрицательное трение грунта при морозных пучениях и выполняет роль противоударной защиты. После установки оголовка внутрь сваи заливается мелкозернистый бетон, а стойка промежуточной опоры соединяется с ней через фланцевый стык.

Расчет для конкретного случая, проекта «Юнилайт», с высотой опор около 15 метров и шагом 250 метров при массе транспортного средства около трех тонн показал, что напряжения в оголовке и в стальном фланце остаются ниже допустимых для стали марки С355. Значит, несущая способность сваи и грунтового основания обеспечена.
Особенности такой схемы сводятся к ряду моментов:
- нет необходимости в опалубке и долгом ожидании набора прочности – можно существенно выиграть время;
- можно устанавливать сваи практически в любых погодных условиях (включая холодный сезон и влажный грунт), что обеспечивает непрерывность работ;
- высокая производительность благодаря применению специализированного оборудования для забивки свай; снижение объемов земляных работ и площадей котлованов;
- универсальность: система подходит для различных типов грунтов, включая слабые и неоднородные, без необходимости в сложной подготовке основания.
По словам инженеров-проектировщиков, применение этой схемы позволяет сократить сроки возведения промежуточных опор более чем в десять раз по сравнению с традиционными плитными фундаментами.
Инженерные расчеты
Существенной переменной во время строительства служит анализ горизонтальных перемещений свай на различных типах грунта. Ниже приведены расчеты смещения забивной сваи для пяти вариантов самых распространенных грунтов.
| Грунт | Длина сваи, L, метры | Горизонтальные перемещения сваи, Е, миллиметры |
| Суглинок текучепластичный (IL = 0,9) | 10 | 34,5 |
| Суглинок полутвердый (IL = 0,5) | 5 | 28,8 |
| Супесь пластичная (IL = 0,7) | 7 | 32 |
| Супесь твердая (IL = 0,1) | 5 | 26 |
| Песок мелкий (е = 0,71) | 5 | 27,1 |
Результаты показывают, что система обеспечивает достаточную жесткость и устойчивость всей конструкции — горизонтальные сдвиги находятся в пределах допустимых для сооружений такого типа.
Перспективы технологии
Инженерное решение демонстрирует тот самый баланс, которого требуют современные транспортные системы: легкость, скорость монтажа, универсальность применения и долговечность. Использование сборных свайных фундаментов с металлическим оголовком позволяет уйти от громоздких плитных оснований и обеспечить высокую производительность строительства без ущерба для надежности транспортной структуры.
Для сетевых транспортных эстакад, где опоры могут исчисляться десятками или даже сотнями на километр маршрута, именно такие оптимизированные решения способны стать технологическим ключом к масштабируемости и экономической эффективности.
Исследователи объяснили, как цивилизация майя добивалась высокой точности в предсказании солнечных затмений на протяжении столетий. Для коррекции накапливающихся астрономических неточностей они использовали сложную систему пересекающихся календарных таблиц.
Ежедневно, еще до восхода солнца, миллионы птиц по всей планете наполняют воздух своими голосами. Этот рассветный концерт — одно из самых красивых и загадочных явлений природы. Почему пернатые певцы предпочитают встречать день именно так? Авторы нового исследования предложили простой ответ: птицы не могут иначе. Ночь заставляет их молчать, а утро дает долгожданную свободу, выплескивающуюся в бурном и страстном хоре.
Японские психиатры описали редкий случай из своей практики. У 17-летней пациентки наблюдались признаки психоза, которые регулярно повторялись перед месячными, а после их окончания исчезали. Терапия антипсихотиками и антидепрессантами не помогла, но когда врачи назначили препарат, применяемый при эпилептических припадках, симптомы полностью прошли.
Проанализировав данные наблюдений, полученных с помощью наземных обсерваторий за последние два десятилетия, астрономы обнаружили потенциально обитаемый мир — суперземлю Gliese 251 c (GJ 251 с). Планета обращается вокруг красного карлика на расстоянии около 18 световых лет от Земли и считается одним из самых перспективных кандидатов для поисков жизни.
В современном доме, насыщенном разнообразной техникой, удлинители стали незаменимым атрибутом, позволяющим обеспечить электропитанием все необходимые устройства. Однако мало кто задумывается, что привычное использование этого аксессуара может нести серьезную угрозу безопасности. По статистике, значительная часть бытовых пожаров происходит из-за неправильной эксплуатации электропроводки и вспомогательных устройств. Какие приборы категорически нельзя подключать через удлинители и почему это может привести к трагическим последствиям, рассказывает профессор кафедры наноэлектроники РТУ МИРЭА, доктор физико-математических наук Алексей Юрасов.
Исследователи объяснили, как цивилизация майя добивалась высокой точности в предсказании солнечных затмений на протяжении столетий. Для коррекции накапливающихся астрономических неточностей они использовали сложную систему пересекающихся календарных таблиц.
Проанализировав данные наблюдений, полученных с помощью наземных обсерваторий за последние два десятилетия, астрономы обнаружили потенциально обитаемый мир — суперземлю Gliese 251 c (GJ 251 с). Планета обращается вокруг красного карлика на расстоянии около 18 световых лет от Земли и считается одним из самых перспективных кандидатов для поисков жизни.
В современном доме, насыщенном разнообразной техникой, удлинители стали незаменимым атрибутом, позволяющим обеспечить электропитанием все необходимые устройства. Однако мало кто задумывается, что привычное использование этого аксессуара может нести серьезную угрозу безопасности. По статистике, значительная часть бытовых пожаров происходит из-за неправильной эксплуатации электропроводки и вспомогательных устройств. Какие приборы категорически нельзя подключать через удлинители и почему это может привести к трагическим последствиям, рассказывает профессор кафедры наноэлектроники РТУ МИРЭА, доктор физико-математических наук Алексей Юрасов.
Согласно новой гипотезе, сознание возникает не только из-за активности нейронов, но и благодаря физическим процессам — электромагнитным полям от движения жидкости в мозге. Эта модель, как и ее предшественники, пока носит теоретический характер, но предлагает нестандартный взгляд на проблему синхронизации работы разных отделов мозга.
Вы попытались написать запрещенную фразу или вас забанили за частые нарушения.
Понятно
Из-за нарушений правил сайта на ваш аккаунт были наложены ограничения. Если это ошибка, напишите нам.
Понятно
Наши фильтры обнаружили в ваших действиях признаки накрутки. Отдохните немного и вернитесь к нам позже.
Понятно
Мы скоро изучим заявку и свяжемся с Вами по указанной почте в случае положительного исхода. Спасибо за интерес к проекту.
Понятно
